库奥皮奥剧院翻新与扩建

设计公司  ALA
位置       芬兰
时间       2014
面积       11500.0平方米
类型       剧院文化建筑

库奥皮奥市剧院是一座20世纪60年代现代主义建筑,由建筑师Helmer Stenros和Risto-Veikko Luukkonen共同完成。

其扩张工程包括工作室舞台的扩建,该舞台有着200个灵活的座位和一些舞台机械设备。新的空间同时具有装载物流、服装制造和存储,以及一些其他功能。



新的扩建与翻新首先将屋顶高塔增高,再在外面设置了一圈玻璃灯箱,给剧院顶部戴了一个五彩霓虹“帽子”。

当从市中心接近剧院时,唯一可见的改变是海拔4米高的剧院塔楼,主要舞台的技术将会全部更新,当前的塔楼也需要被升高。

插件将形成一个闪闪发光的玻璃灯,因此老塔楼独特的影子清晰可见。

然后第二个措施是将一个包含小剧院的垂直长方体插入进老剧院中。

新剧院简洁的体量上覆盖着永恒而美丽的折面白色混凝土板,与老剧院的白色混凝土板,玻璃以及陶土砖形成相得益彰的并存效果。

新体之中的小剧院墙面也采用了语言类似的折面板,为室内营造出优秀的音效。












扩张工程实际上是将一个简单的矩形体垂直坐落于现有的体积上。新舞台连接到主舞台,就像是横版的舞台塔。

毫无疑问它很坚固并且永久,当前的扩建与补充工程与以往的建筑质量标准和永久性保持一致。











总平面


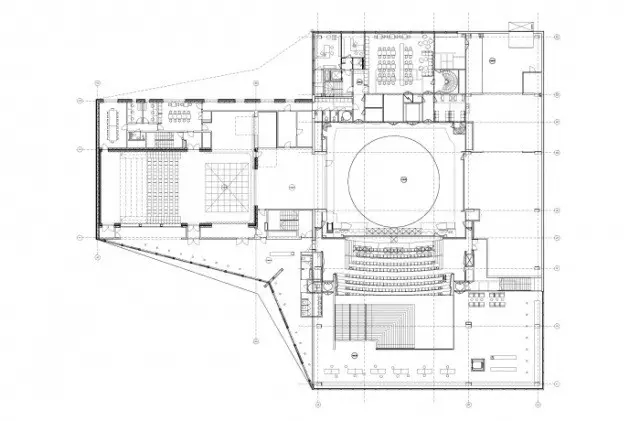
首层平面


二层平面



剖面1

剖面2

剖面3


南立面



西立面




北立面


东立面

你知道你的Internet Explorer是过时了吗?

为了得到我们网站最好的体验效果,我们建议您升级到最新版本的Internet Explorer或选择另一个web浏览器.一个列表最流行的web浏览器在下面可以找到.